
VINCENT SARROINO COURTIER IMMOBILIER RÉSIDENTIEL ET COMMERCIAL
dimanche, 3 mai, 2026 | 14:00 - 16:00
Imprimer
Retour aux propriétés
3 Chambre(s)
1 Salle(s) de bains
N/A Pièce(s)
Une occasion à ne pas manquer pour ce triplex (appartement à l'étage, appartement au rez-de-chaussée et studio avec entrée indépendante peut être utilisé comme unité intergénérationnel ou location étudiant ou enfant adulte vivant à la maison). Emplacement central, à proximité des commerces, restaurants, transports en commun, écoles (dont l'Université de Montréal), deux grands hôpitaux et l'Oratoire Saint-Joseph. À deux pas des autoroutes 15 (Décarie) et 20, et à distance de marche du métro Snowdon.
Occasion à ne pas manquer pour ce triplex (appt à l'étage,
appt au rdc et studio avec entrée indépendante). Studio
peut être utilisé comme unité intergénérationnel ou
location étudiant ou enfant adulte vivant à la maison.
Emplacement central, à proximité de commerces, restaurants,
transports en commun, écoles (dont l'Univ.de Mtl), deux
hôpitaux et l'Oratoire Saint-Joseph. Près des Aut.15 et 20,
et à distance de marche du métro Snowdon.
Mises à jour et rénovations de la propriété :
1. Toiture neuve -- 2018 (coût total : 17 423,00 $)
- Membrane TPO blanche Energi Star
- Quatre (4) couches de matériau de couverture
- Réparation du parapet
- Matériaux et main-d'oeuvre garantis 10 ans par Carlisle
Synthetics
- Facture et documents de garantie disponibles auprès du
fournisseur.
2. 2018 : 2 nouvelles portes d'entrée (coût total : 5
081,96 $)
- Portes en acier et aluminium noir avec vitrail.
- Novatech Chanelle
3. 2018 : Nouveau carrelage dans la salle de bain à l'étage
- Peinture complète du duplex supérieur
- Refaite du ciment sur le balcon avant en 2022
4. 2025/26 : Ponçage et vernissage de toutes les pièces des
unités principales (rez-de-chaussée et étage). - Escalier
d'entrée principal menant à l'unité supérieure 5240.
- Escalier extérieur et balcon : réparation de fissures
mineures et application d'un scellant gris (1 200 $).
- Peinture des duplex (rez-de-chaussée et étage).
- Calfeutrage des salles de bain des unités supérieure et
inférieure.
- Remplacement sur mesure par Mason des appuis de fenêtre
en béton des unités supérieure et principale (3 219,30 $).
- Réparation et remplacement sur mesure des portes et
tiroirs des armoires de cuisine du duplex supérieur
(uniquement les armoires au-dessus du comptoir) (200,00 $).
- Réparation et peinture du puits de lumière à tous les
niveaux.
- Réinstallation des solins autour des fenêtres des unités
supérieure et inférieure.
- Nettoyage en profondeur de toutes les fenêtres des unités
supérieure et inférieure.
- Réparation et scellement des solins de l'étage supérieur
: fenêtre du salon, petite fenêtre de la chambre, fenêtre
de la salle à manger de l'unité inférieure.
- Ajout d'une baignoire de style Bain Magique dans la salle
de bain de l'étage.
- Le vendeur déclare avoir fait réaliser une inspection
prévente en mars 2026 par Proinspexx. Le rapport est
disponible et téléchargé dans l'annonce pour consultation
obligatoire par tous les acheteurs. Les courtiers ont pris
connaissance du descriptif détaillé et du rapport
d'inspection avant de demander une visite du bien.
Par conséquent, le vendeur a fixé le prix en conséquence
afin de permettre aux acheteurs d'effectuer les réparations
indiquées dans le rapport et de s'approprier le bien.
Le bien est vendu sans garantie légale. Toutefois, les
déclarations détaillées et le rapport d'inspection font
partie intégrante des déclarations du vendeur, conformément
au statut du bien.
| BÂTIMENT | |
|---|---|
| Type | Triplex |
| Style | Jumelé |
| Dimensions | 1x1 P |
| La Taille Du Lot | 2560 PC |
| DÉPENSES | |
|---|---|
| Coût d'énergie | $ 2951 / année |
| Taxes municipales (2026) | $ 5889 / année |
| Taxes scolaires (2026) | $ 751 / année |
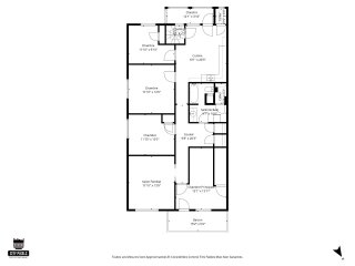
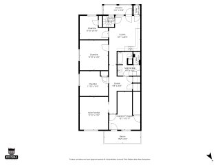
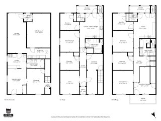
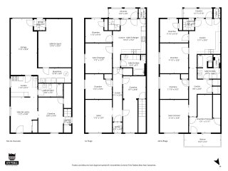
| DÉTAILS DE PIÈCE | |||
|---|---|---|---|
| Pièce | Dimensions | Niveau | Sol |
| couloir | 8.11 x 22.5 P | Rez-de-chaussée | Bois |
| Balcon | 5.2 x 15.2 P | 2ième étage | Bois |
| Cuisine | 8.11 x 11.2 P | Sous-sol | Bois |
| Salon | 11.2 x 13.9 P | Rez-de-chaussée | Bois |
| Salon | 11.10 x 13.9 P | 2ième étage | Bois |
| Chambre à coucher | 10.4 x 14.9 P | Sous-sol | Tapis |
| Chambre à coucher principale | 10.5 x 11.2 P | Rez-de-chaussée | Bois |
| Chambre à coucher principale | 13.1 x 15.11 P | 2ième étage | Bois |
| Salle de bains | 5.6 x 10.4 P | Sous-sol | Céramique |
| Chambre à coucher | 9.7 x 23.8 P | Rez-de-chaussée | Bois |
| Chambre à coucher | 10.5 x 11.10 P | 2ième étage | Bois |
| Salle de jeux | 11.2 x 14.8 P | Sous-sol | Béton |
| Salle à manger | 11.2 x 12.7 P | Rez-de-chaussée | Bois |
| Salle à manger | 11.10 x 12.6 P | 2ième étage | Bois |
| salle de sport | 13.10 x 23.3 P | Sous-sol | Béton |
| Chambre à coucher | 9.10 x 11.2 P | Rez-de-chaussée | Bois |
| Salle de bains | 9.7 x 10.0 P | 2ième étage | Céramique |
| Salle de bains | 8.7 x 10.4 P | Rez-de-chaussée | Céramique |
| couloir | 9.8 x 20.3 P | 2ième étage | Bois |
| Cuisine | 13.10 x 15.2 P | Rez-de-chaussée | Bois |
| Chambre à coucher | 9.10 x 11.10 P | 2ième étage | Bois |
| Véranda | 12.2 x 4.0 P | Rez-de-chaussée | Bois |
| Cuisine | 13.1 x 20.3 P | 2ième étage | Bois |
| CARACTÉRISTIQUES | |
|---|---|
| Fenêtres | Aluminium |
| Stationnement | Au garage, Extérieur |
| Proximité | Autoroute/Voie rapide, Cegep, École primaire, École secondaire, Garderie/CPE, Golf, Hôpital, Parc-espace vert, Piste cyclable, Transport en commun, Université |
| Toiture | Autre, Membrane élastomère |
| Revêtements | Béton, Brique |
| Fondation | Bloc de béton |
| Garage | Chauffé, Double largeur ou plus |
| Énergie pour le chauffage | Électricité |
| Sous-sol | Entrée indépendante, Totalement aménagé |
| Système d'égouts | Municipal |
| Approvisionnement en eau | Municipalité |
| Topographie | Plat |
| Mode de chauffage | Plinthes électriques |
| Zonage | Résidentiel |

VINCENT SARROINO COURTIER IMMOBILIER RÉSIDENTIEL ET COMMERCIAL